• 手机版

    扫码体验手机版

  • 微信公众号

    扫码关注公众号

登录注册
游客您好
第三方账号登陆
24小时咨询电话

400-1234-7788

  • 点击联系客服

    在线时间:8:00-16:00

    客服电话

    400-123-4567

    加盟热线

    400-213-2344
  • 星点互联APP

    随时掌握企业动态

  • 扫描二维码

    关注星点微信公众号

本案例设计师
xiixii设计总监
擅长:欧式古典、现代简约、新中式、新古典
案例数:6套 经验:11年
预约设计师

我们承诺:严格保密用户隐私,维护用户的利益以及专业装修平台口碑!我们免费提供六项专业装修服务,让您装修更省钱、省心、省时间!

六中宿舍70平二室二厅北欧风格装修效果图

[复制链接]
xiixii 发表于 2025-11-12 10:59:39 | 显示全部楼层 |阅读模式 打印 上一主题 下一主题
六中宿舍70平二室二厅北欧风格装修效果图
  • 北欧极简

    案例风格

  • 二居室

    案例户型

  • 70㎡

    案例面积

  • 六中宿舍

    楼盘名称

  • 石家庄

    所在城市

  • 20万元

    工程造价

设计理念

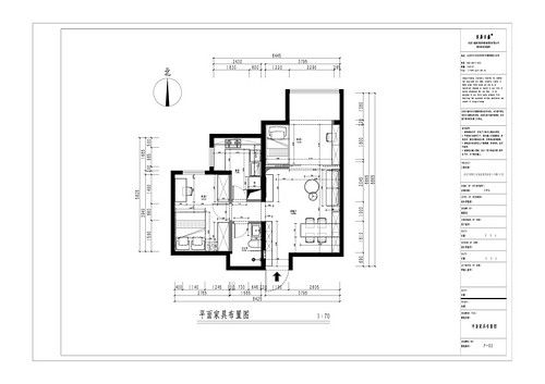
本案为一户70平米六层砖混结构旧房改造案例,将原本的厨房和主卧阳台都做了外扩,厨房增加了实用空间,阳台增加了休闲空间的通透感。由于阳面的窗户有限,客餐厅和次卧主要依靠北面窗户采光,所以北面的厨房处理成开放式,让餐厅与厨房之间产生互动,也增加了室内的统一感。
  • 二居室-北欧-效果图

    二居室-北欧-效果图

  • 二居室-北欧-效果图

    二居室-北欧-效果图

  • 二居室-北欧-效果图

    二居室-北欧-效果图

  • 二居室-北欧-效果图

    二居室-北欧-效果图

  • 二居室-北欧-效果图

    二居室-北欧-效果图


本帖子中包含更多资源

您需要 登录 才可以下载或查看,没有账号?立即注册

x
回复

使用道具 举报

您需要登录后才可以回帖 登录 | 立即注册

本版积分规则

获取装修报价今天已经有100位业主获取了装修预算

小区区域: *
房屋面积: *
m2
房屋户型: *
手机号码: *
装修预算报价为
  • 材料费 :
  • 人工费 :
  • 设计费 :
  • 质检费 :

* 我们将免费提供设计咨询、报价服务。

咨询电话:400-1234-8888

全国统一客服电话
400-1234-7788

24x7小时免费咨询

  • 官方在线客服

    QQ客服:小西

    点击交谈

    QQ客服:良子

    点击交谈

    QQ客服:闵月

    点击交谈
  • 上海市虹口区海伦中心B座4F4055-4056室

  • 星点装饰装修设计有限公司

  • 扫一扫关注官方微信

    获取一手特惠信息

Powered by Discuz!X3.5 ©2001-2013 Discuz Team.星点互联设计营业执照